Harvia M3 Pro 20 - дров'яна піч для сауни
Традиційне тепло в сучасному виконанні
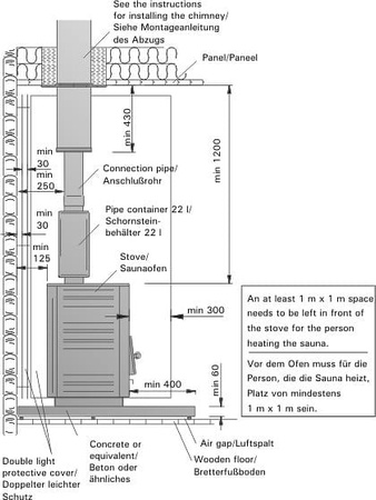
Harvia Pro 20 M3 - дров'яна кам'янка HARVIA PRO 20 призначена для великих приміщень - вона ідеально нагріє повітря в сауні об'ємом 8-20 м3. На додаток до найвищої якості роботи, вона також може вразити своєю естетикою. Це класична модель у графітовому чорному кольорі, однією з найцікавіших деталей якої є скляні дверцята, крізь які просвічує полум'я полум'яного вогню. Використання деревини як палива також гарантує унікальну атмосферу та аромат - відповідно до фінських традицій.
Основні характеристики виробу:
- Тип потужності: Дров'яне опалення - забезпечує природне, приємне тепло і неповторну атмосферу сауни.
- Компактний дизайн: Класичний дизайн, ідеально підходить для великих саун.
- Матеріал виготовлення: Високоякісна нержавіюча сталь, стійка до корозії та високих температур.
- Скляні дверцята: дозволяють милуватися полум'ям, створюючи затишну атмосферу під час сеансу сауни.
- Ефективна система горіння: Оптимальне споживання дров при високій ефективності нагріву.
Переваги використання печі Harvia Pro 20 M3:
- Природне тепло: Дрова забезпечують унікальний мікроклімат, якого важко досягти за допомогою електричних печей.
- Затишна атмосфера: вид полум'я через скляні дверцята додає шарму і сприяє розслабленню.
- Довговічність і надійність: Міцна конструкція забезпечує тривалий термін служби навіть при інтенсивному використанні.
- Екологічне опалення: можливість використання відновлюваних джерел енергії у вигляді деревини.
Технічні характеристики
| Параметр | Значення |
|---|---|
| Модель | PRO 20 M3 |
| Приміщення сауни (мін. м³) | 8 |
| Приміщення сауни (макс. м³) | 20 |
| Камені (макс. кг) | 40 |
| Розміри (Ш х В х Г) мм | 430 х 760 х 510 |
| Вага (кг) | 58 |
| Потужність (кВт) | 24,1 |
| Безпечна відстань з боків і ззаду (мм) | 50* |
| Безпечна відстань з боків (мм) | 300 |
| Безпечна відстань до задньої частини (мм) | 300 |
| Безпечна відстань спереду (мм) | 300 |
| Відстань від стелі (мін. мм) | 1300 |
| Товщина кришки пожежного відсіку (мм) | 10 |
| Діаметр труби до димоходу (мм) | 115 |










