Harvia Pro 20 M3 - дров'яна піч для сауни 24,1 кВт з 30 кг каміння
- Harvia Pro 20 M3 - це потужна дров'яна кам'янка, яка ідеально підходить для приміщень об'ємом 8-20 м³, зі скляними дверцятами та міцною конструкцією з нержавіючої сталі. У комплекті поставляється 30 кг каміння.
Продукти за підпискою у вашому кошику
Встановіть одну частоту доставки для всіх продуктів підписки у вашому кошику щомісяця:
Продукти за підпискою у вашому кошику
Harvia Pro 20 M3 - ефективна дров'яна піч для сауни об'ємом 8-20 м³
Harvia Pro 20 M3 - це сучасний підхід до традиційної сауни, розроблений для середніх і великих домашніх і садових саун. Потужність 24,1 кВт гарантує швидке, інтенсивне нагрівання та глибоке розслаблення.
Піч вирізняється елегантним графітово-чорним кольором та скляними дверцятами, які дозволяють спостерігати за заспокійливим полум'ям. Горіння натуральних дров створює неповторну атмосферу і аромат відповідно до фінських традицій.
30 кг каменів для сауни входять вкомплект, що дозволяє почати користуватися піччю відразу після установки.
Найважливіші переваги печі Harvia Pro 20 M3
- Дров' янеопалення - природне, приємне і глибоке тепло.
- Ємність для каменів до 40 кг - ідеально підходить для інтенсивної пари.
- 30 кг каміння в комплекті - піч готова до використання з першого дня.
- Склянідверцята - атмосферний вид на вогонь.
- Міцна нержавіюча сталь - стійка до корозії та високих температур.
- Потужність 24,1 кВт - швидке нагрівання сауни.
- Для саун 8-20 м³ - ідеально підходить для приміщень середнього розміру.
- Ефективна система згоряння - менше споживання дров, краща продуктивність.

Технічні характеристики
- МодельPRO20 м3
- ТиппаливаДрова
- Ємність для каменів40кг (30 кг в комплекті)
- Розміри430× 760 × 510 мм
- Вага58кг
- Потужність24.1 кВт
- Мінімальний об'єм сауни8м³
- Макс. об'єм сауни20м³
- ТипсауниФінськасауна
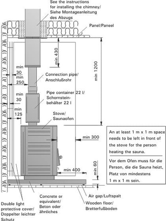
- Відстань до бічних стінок300мм
- Відстань ззаду300мм
- Відстань спереду300мм
- Мінімальна відстань від стелі1300мм
- Товщина пожежного відсіку10мм
- Діаметр димохідної труби115мм
- СумісністьДомашні та садовісауни
- МатеріалиНержавіючасталь
Традиційне тепло в сучасному дизайні
Опалення натуральними дровами
Піч Harvia Pro 20 M3 пропонує справжній досвід фінської сауни, створюючи глибоке, природне тепло, якого не дають електричні плити. Деревина створює неповторну атмосферу та аромат.
Скляні дверцята - вид на полум'я
Дверцята із загартованого скла дозволяють насолоджуватися заспокійливим сяйвом вогню, створюючи атмосферу релаксації та затишку.
30 кг каменів для сауни в комплекті
Кам'янка вміщує до 40 кг каміння, а в комплекті ви отримуєте 30 кг, що дозволяє досягти інтенсивної пари і рівномірної теплопередачі з першого ж використання.
Висока міцність і стійкість
Товщина топки 10 мм та нержавіюча сталь гарантують багаторічну безперебійну роботу навіть при інтенсивному використанні.
Ефективна система спалювання
Передові технічні рішення гарантують оптимальне згоряння дров, економію палива та високу ефективність опалення.
Підсумок
Harvia Pro 20 M3 - ідеальний вибір для тих, хто цінує традиційний відпочинок на природі та унікальну атмосферу природного вогню. Потужність 24,1 кВт, елегантний дизайн і 30 кг каміння в комплекті роблять її повноцінним рішенням для вашої сауни.










