Harvia Pro 26 - Peč za savno na drva
Tradicionalna toplota v sodobni različici
Harvia Pro 26 je peč za savno na drva HARVIA PRO 26 je zasnovana za večje prostore - idealno bo ogrela zrak v savni s prostornino 10-26 m3. Poleg najkakovostnejše zmogljivosti lahko navduši tudi s svojo estetiko. Gre za klasičen model v grafitno črni barvi, katerega ena od zanimivejših podrobnosti so steklena vrata, skozi katera sije plamteči ogenj. Uporaba lesa za gorivo prav tako zagotavlja edinstveno vzdušje in vonj - v skladu s finsko tradicijo.
Glavne značilnosti izdelka:
- Vrsta energije: Vroče ogrevanje na les - zagotavlja naravno, prijetno toploto in edinstveno vzdušje v savni.
- Kompaktna oblika: Klasična oblika, idealna za večje savne.
- Gradbeni material: - Izdelek je izdelan iz lesa, ki ga je mogoče uporabiti v savnah: Material: visokokakovostno nerjavno jeklo, odporno proti koroziji in visokim temperaturam.
- Steklena vrata: Omogočajo občudovanje plamenov in ustvarjajo prijetno vzdušje med savnanjem.
- Učinkovit sistem izgorevanja: Optimalna poraba lesa z visoko učinkovitostjo ogrevanja.
Prednosti uporabe štedilnika Harvia Pro 26:
- Naravna toplota: Les zagotavlja edinstveno mikroklimo, ki jo je težko doseči z električnimi štedilniki.
- Prijetnovzdušje: Pogled na plamene skozi steklena vrata dodaja čar in spodbuja sprostitev.
- Trajnost in zanesljivost: Robustna konstrukcija zagotavlja dolgo življenjsko dobo tudi pri intenzivni uporabi.
- Ekološko ogrevanje: Možnost uporabe obnovljivih virov energije v obliki lesa.
Tehnične specifikacije
| Parameter | Vrednost |
|---|---|
| Model | PRO 26 |
| Prostor za savno (min. m³) | 10 |
| Prostor za savno (največ m³) | 26 |
| Kamni (max. kg) | 50 |
| Dimenzije (Š x V x G) mm | 430 x 810 x 510 |
| Teža (kg) | 65 |
| Moč (kW) | 26.6 |
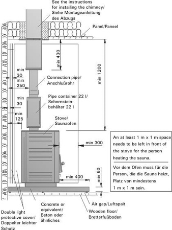
| Varnostna razdalja od strani in zadaj (mm) | 50* |
| Varnostna razdalja od strani (mm) | 375 |
| Varnostna razdalja od zadaj (mm) | 375 |
| Varnostna razdalja spredaj (mm) | 375 |
| Varnostna razdalja od stropa (min. mm) | 1300 |
| Debelina pokrova kurišča (mm) | 10 |
| Premer cevi do dimnika (mm) | 115 |




