Harvia Pro 26 - Fogão de Sauna a Lenha 26,6 kW com 30 kg de pedras incluídas
- O potente aquecedor de sauna Harvia Pro 26 para 10-26 m³ proporciona um calor intenso e natural e uma atmosfera única graças à sua porta de vidro e ao aquecimento a lenha. Inclui 30 kg de pedras.
Produtos de subscrição no seu cesto de compras
Defina uma frequência de entrega para todos os produtos de subscrição no seu cesto de compras todos os dias:
Produtos de subscrição no seu cesto de compras
Harvia Pro 26 - Fogão de Sauna a Lenha Eficiente para Salas 10-26 m³.
Descubra as tradicionais saunas finlandesas com um toque moderno com o fogão a lenha Harvia Pro 26, um modelo potente e robusto criado para saunas maiores que proporciona um aquecimento intenso e uniforme e uma atmosfera única.
O fogão tem capacidade para 50 kg de pedras e recebe 30 kg de pedras de sauna gratuitamente, pelo que pode começar a utilizá-lo imediatamente após a instalação.
O design clássico em tons de preto grafite e a porta de vidro realçam a elegância e a atmosfera do fogo natural.
Principais vantagens do fogão Harvia Pro 26
- Aquecimento a lenha - calor natural, agradável e profundo.
- Até 50 kg de pedras - vapor intenso e distribuição uniforme do calor.
- Pedras incluídas - 30 kg - imediatamente prontas a utilizar.
- Porta de vidro - possibilidade de observar as chamas para um ambiente único.
- Aço inoxidável durável - elevada resistência à corrosão e ao calor.
- Potência de 26,6 kW - aquecimento rápido de grandes saunas.
- Para saunas de 10-26 m³ - ideal para salas médias e grandes.
- Sistema de combustão eficiente - poupa madeira mantendo a eficiência.

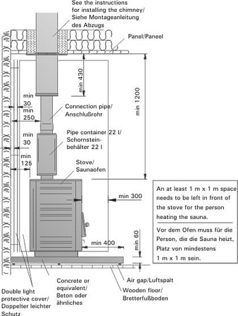
Especificações técnicas
- ModeloPRO26
- Tipo decombustívelLenha
- Capacidade da pedra50kg (30 kg incluídos)
- Dimensões430× 810 × 510 mm
- Peso65kg
- Potência26,6 kW
- Volume mínimo da sauna10m³
- Volume máximo da sauna26m³
- Tipo desaunaSauna finlandesa
- Distância para os lados375mm
- Distância à retaguarda375mm
- Distância para a frente375mm
- Distância mínima do tecto1300mm
- Espessura do compartimento corta-fogo10mm
- Diâmetro do tubo da chaminé115mm
- CompatibilidadeSaunas domésticas e de jardim
- MateriaisAço inoxidável
Calor tradicional num design moderno
Aquecimento natural a lenha
A Harvia Pro 26 proporciona uma autêntica experiência de sauna finlandesa, oferecendo um calor intenso, natural e profundo. A madeira cria um microclima único que nenhum fogão elétrico pode substituir.
Porta de vidro - uma visão atmosférica das chamas
O vidro temperado da porta permite-lhe desfrutar da vista relaxante do fogo. As chamas criam uma atmosfera acolhedora e aumentam o relaxamento durante cada sessão.
Grande capacidade de pedra - 30 kg incluídos
O fogão tem capacidade para 50 kg de pedras e o conjunto inclui 30 kg de pedras de sauna, garantindo uma produção intensa de vapor desde a primeira utilização.
Durabilidade máxima
O aço inoxidável robusto com uma espessura de até 10 mm garante muitos anos de durabilidade, mesmo com uma utilização intensiva.
Combustão e desempenho eficientes
O sistema de combustão avançado garante um consumo ótimo de lenha com a máxima eficiência.
Resumo
A Harvia Pro 26 é a escolha ideal para os amantes das saunas tradicionais em espaços maiores. A potência de 26,6 kW, a capacidade de 50 kg de pedras e 30 kg incluídos e o design elegante criam um ambiente único de relaxamento e regeneração.




