"Harvia Pro 26" - medžio pirties krosnelė 26,6 kW su 30 kg akmenų
- Galinga "Harvia Pro 26" krosnelė, skirta 10-26 m³, dėl stiklinių durelių ir medinio šildymo užtikrina intensyvią natūralią šilumą ir nepakartojamą atmosferą. Į komplektą įeina 30 kg akmenų.
Prenumeruojamos prekės jūsų krepšelyje
Nustatykite vieną pristatymų dažnumą visoms savo krepšelyje prenumeruojamoms prekėms kas:
Prenumeruojamos prekės jūsų krepšelyje
"Harvia Pro 26" - efektyvi malkinė pirties krosnelė 10-26 m³ patalpoms.
Atraskite tradicinę suomišką pirtį šiuolaikiškai su malkine krosnele "Harvia Pro 26". Tai galingas, tvirtas modelis, sukurtas didesnėms pirtims, užtikrinantis intensyvų, tolygų kaitinimą ir nepakartojamą atmosferą.
Krosnelė talpina iki 50 kg akmenų, o 30 kg pirties akmenų gausite nemokamai, todėl ją galėsite pradėti naudoti iškart po sumontavimo.
Klasikinis grafito juodos spalvos atspalvio dizainas ir stiklinės durelės pabrėžia natūralios ugnies eleganciją ir atmosferą.
Pagrindiniai "Harvia Pro 26" viryklės privalumai
- Šildymas malkomis - natūrali, maloni ir gili šiluma.
- Iki 50 kg akmenų - intensyvus garas ir tolygus šilumos paskirstymas.
- Į komplektą įeina 30 kg akmenų - iš karto paruošti naudojimui.
- Stiklinės durelės - galimybė stebėti liepsną, kad būtų sukurta nepakartojama atmosfera.
- Patvarus nerūdijantis plienas - didelis atsparumas korozijai ir karščiui.
- 26,6 kW galia - greitas didelių pirčių kaitinimas.
- Skirtas 10-26 m³ pirtims - idealiai tinka vidutinėms ir didesnėms patalpoms.
- Efektyvi degimo sistema - taupoma mediena išlaikant efektyvumą.

Techninės specifikacijos
- ModelisPRO26
- Kuro tipasMediena
- Akmens talpa50kg (įskaitant 30 kg)
- Matmenys430× 810 × 510 mm
- Svoris65kg
- Galingumas26,6 kW
- Minimalus pirties tūris10m³
- Didžiausias pirties tūris26m³
- Saunos tipasSuomiškasauna
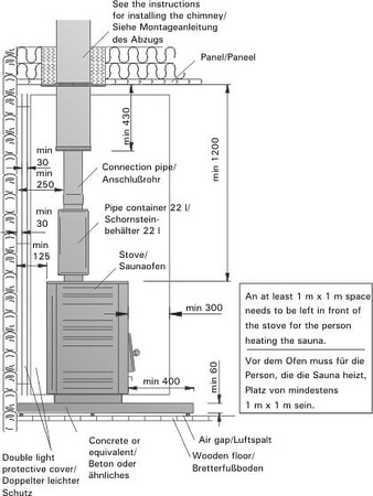
- Atstumas iki šonų375mm
- Atstumas iki galo375mm
- Atstumas iki priekio375mm
- Minimalus atstumas nuo lubų1300mm
- Priešgaisrinio skyriaus storis10mm
- Dūmtraukio vamzdžio skersmuo115mm
- SuderinamumasNamų ir sodopirtys
- MedžiagosNerūdijantisplienas
Tradicinė šiluma moderniame dizaine
Šildymas natūraliomis malkomis
"Harvia Pro 26" suteikia autentišką suomiškos pirties patirtį, siūlydama intensyvią, natūralią ir gilią šilumą. Mediena sukuria unikalų mikroklimatą, kurio nepakeis jokia elektrinė kaitlentė.
Stiklinės durelės - nuotaikingas liepsnų vaizdas
Dėl grūdinto stiklo durelėse galite mėgautis raminančiu ugnies vaizdu. Liepsnos sukuria jaukią atmosferą ir sustiprina atsipalaidavimą kiekvieno seanso metu.
Didelė akmenų talpa - į komplektą įeina 30 kg
Kaitlentė talpina iki 50 kg akmenų, o komplekte gausite 30 kg pirties akmenų, todėl nuo pat pirmojo naudojimo bus užtikrintas intensyvus garų gaminimas.
Didžiausias patvarumas
Tvirtas iki 10 mm storio nerūdijantis plienas užtikrina ilgametį patvarumą net ir intensyviai naudojant.
Efektyvus degimas ir našumas
Pažangi degimo sistema užtikrina optimalų malkų sunaudojimą ir didžiausią efektyvumą.
Santrauka
Harvia Pro 26 yra idealus pasirinkimas tradicinių pirčių mėgėjams, mėgstantiems pirtis didesnėse erdvėse. Dėl 26,6 kW galios, 50 kg akmenų ir 30 kg įeinančių akmenų talpos bei elegantiško dizaino sukuriama unikali aplinka atsipalaidavimui ir regeneracijai.




