Harvia Pro 26 - puusaunaküte 26,6 kW ja 30 kg kividega koos
- Võimas Harvia Pro 26 saunaküte 10-26 m³ pakub intensiivset, loomulikku soojust ja ainulaadset atmosfääri tänu klaasuksele ja puuküttele. 30 kg kive on kaasas.
Tellimustooted ostukorvis
Määrake üks tarnesagedus kõigile oma ostukorvis olevatele tellimustoodetele iga:
Tellimustooted ostukorvis
Harvia Pro 26 - tõhus puuküttekollektor 10-26 m³ ruumidesse.
Avastage traditsiooniline Soome saunaküte kaasaegses võtmes Harvia Pro 26. See on võimas ja tugev mudel, mis on loodud suuremate saunade jaoks, mis pakub intensiivset ja ühtlast kütmist ning ainulaadset atmosfääri.
Keris pakub kuni 50 kg kivide mahutavust ja saate 30 kg saunakive tasuta, nii et saate seda kohe pärast paigaldamist kasutama hakata.
Klassikaline disain grafiitmustas toonis ja klaasuks rõhutavad loodusliku tule elegantsust ja atmosfääri.
Harvia Pro 26 kerise peamised eelised
- Puuküte - looduslik, meeldiv ja sügav soojus.
- Kuni 50 kg kivid - intensiivne aur ja ühtlane soojusjaotus.
- Kivid kaasas - 30 kg - kohe kasutusvalmis.
- Klaasist uks - võimalus jälgida leeki unikaalse atmosfääri saavutamiseks.
- Vastupidav roostevaba teras - kõrge korrosiooni- ja kuumakindlus.
- Võimsus 26,6 kW - suurte saunade kiire kütmine.
- Saunadele 10-26 m³ - ideaalne keskmise suurusega ja suuremate ruumide jaoks.
- Tõhus põlemissüsteem - säästab puitu, säilitades samas tõhususe.

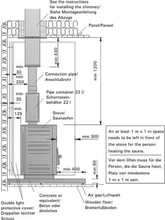
Tehnilised andmed
- ModelPRO26
- Kütuse tüüpPuit
- Kivi mahutavus50kg (30 kg kaasa arvatud)
- Mõõtmed430× 810 × 510 mm
- Kaal65kg
- Võimsus26,6 kW
- Min. saunamaht10m³
- Maksimaalne saunamaht26m³
- Sauna tüüpSoomesaun
- Kaugus külgedest375mm
- Kaugus tagant 375mm
- Kaugus ette375mm
- Min. kaugus laest1300mm
- Tulekahjuosakonna paksus10mm
- Korstnatoru läbimõõt115mm
- SobivusKodu- ja aiasaunad
- MaterjalidRoostevabastterasest
Traditsiooniline soojus kaasaegses disainis
Looduslik puuküte
Harvia Pro 26 pakub autentset Soome saunakogemust, pakkudes intensiivset, loomulikku ja sügavat soojust. Puit loob ainulaadse mikrokliima, mida ükski elektriküte ei suuda asendada.
Klaasist uks - atmosfääriline vaade leekidele
Karastatud klaasist uks võimaldab teil nautida rahustavat vaadet tulekahjule. Leegid loovad hubase atmosfääri ja suurendavad lõõgastust iga seansi ajal.
Suur kivimaht - 30 kg kaasa arvatud
Keris mahutab kuni 50 kg kive ja saunakividest saate komplektis 30 kg, mis tagab intensiivse aurutootmise kohe esimesest kasutusest alates.
Ülim vastupidavus
Vastupidav kuni 10 mm paksune roostevaba teras tagab paljude aastate pikkuse vastupidavuse ka intensiivse kasutamise korral.
Tõhus põlemine ja jõudlus
Täiustatud põlemissüsteem tagab optimaalse puidukulu maksimaalse tõhususega.
Kokkuvõte
Harvia Pro 26 on ideaalne valik traditsiooniliste saunade armastajatele suuremates ruumides. Võimsus 26,6 kW, 50 kg kivide ja 30 kg lisatud kivide mahutavus ning elegantne disain loovad ainulaadse keskkonna lõõgastumiseks ja taastumiseks.




