Harvia Pro 26 - Saunová kamna na dřevo 26,6 kW s 30 kg kameny v balení
- Výkonná saunová kamna Harvia Pro 26 pro 10-26 m³ poskytují intenzivní přírodní teplo a jedinečnou atmosféru díky proskleným dveřím a topení dřevem. Součástí balení je 30 kg kamenů.
Předplacené produkty v nákupním košíku
Nastavení jedné frekvence doručování pro všechny předplacené produkty v košíku každý den:
Předplacené produkty v nákupním košíku
Harvia Pro 26 - účinná saunová kamna na dřevo pro místnosti 10-26 m³.
Objevte tradiční finské sauny v moderním po jetí s kamny na dřevo Harvia Pro 26. Jedná se o výkonný, robustní model vytvořený pro větší sauny, který poskytuje intenzivní, rovnoměrné vytápění a jedinečnou atmosféru.
Vařič nabízí kapacitu až 50 kg kamenů a 30 kg saunových kamenů obdržíte zdarma, takže jej můžete začít používat ihned po instalaci.
Klasický design v odstínu grafitově černé a skleněná dvířka podtrhují eleganci a atmosféru přírodního ohně.
Hlavní výhody kamen Harvia Pro 26
- Topení dřevem - přirozené, příjemné a hluboké teplo.
- Až 50 kg kamenů - intenzivní pára a rovnoměrné rozložení tepla.
- Kameny v ceně - 30 kg - okamžitě připravené k použití.
- Prosklená dvířka - možnost pozorovat plameny pro jedinečnou atmosféru.
- Odolná nerezová ocel - vysoká odolnost proti korozi a teplu.
- Výkon 26,6 kW - rychlý ohřev velkých saun.
- Pro sauny 10-26 m³ - ideální pro střední a větší místnosti.
- Účinný systém spalování - úspora dřeva při zachování účinnosti.

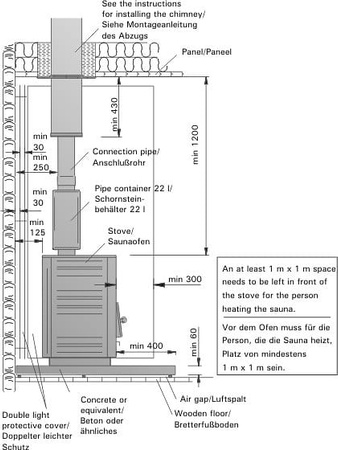
Technické specifikace
- ModelPRO26
- TyppalivaDřevo
- Kapacita kamene50kg (včetně 30 kg)
- Rozměry430× 810 × 510 mm
- Hmotnost65 kg
- Výkon26,6 kW
- Min. objem sauny10m³
- Maximální objem sauny26m³
- TypsaunyFinskásauna
- Vzdálenost od bočních stěn375mm
- Vzdálenost dozadu375mm
- Vzdálenost vpředu375mm
- Min. vzdálenost od stropu1300mm
- Tloušťka požárního úseku10mm
- Průměr komínového potrubí115mm
- KompatibilitaDomácí a zahradnísauny
- MateriályNerezováocel
Tradiční teplo v moderním designu
Vytápění přírodním dřevem
Harvia Pro 26 poskytuje autentický zážitek z finské sauny a nabízí intenzivní, přirozené a hluboké teplo. Dřevo vytváří jedinečné mikroklima, které žádný elektrický vařič nenahradí.
Prosklené dveře - atmosférický pohled na plameny
Tvrzené sklo ve dveřích vám umožní vychutnat si uklidňující pohled na oheň. Plameny vytvářejí útulnou atmosféru a umocňují relaxaci při každém sezení.
Velká kapacita kamene - 30 kg v ceně
Vařič pojme až 50 kg kamenů a v sadě obdržíte 30 kg saunových kamenů, což zaručuje intenzivní produkci páry již od prvního použití.
Maximální odolnost
Robustní nerezová ocel o tloušťce až 10 mm zaručuje dlouholetou životnost i při intenzivním používání.
Účinné spalování a výkon
Pokročilý systém spalování zaručuje optimální spotřebu dřeva s maximální účinností.
Shrnutí
Harvia Pro 26 je ideální volbou pro milovníky tradičních saun ve větších prostorách. Výkon 26,6 kW, kapacita 50 kg kamenů a 30 kg včetně a elegantní design vytvářejí jedinečné prostředí pro relaxaci a regeneraci.




